Denah Kamar Mandi

Banyak hal yang perlu dipertimbangkan selain hanya sekedar desain.

Denah Kamar Mandi

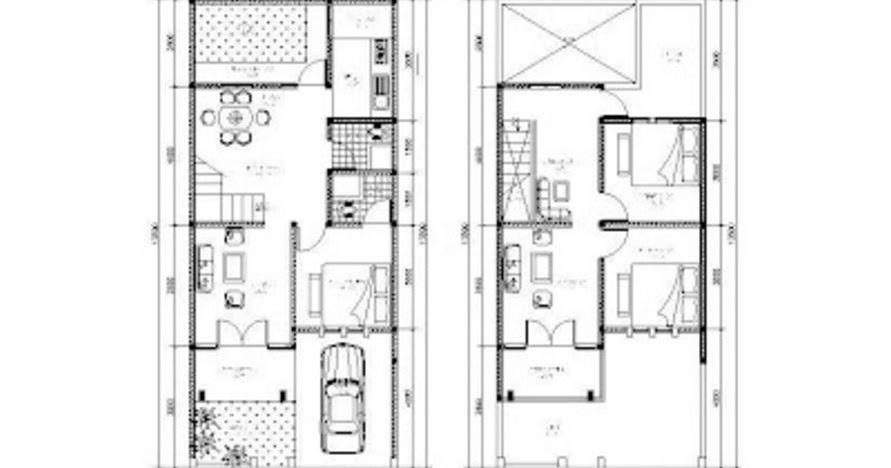
Desain Denah Rumah Minimalis 3 Kamar 2 Kamar Mandi ...
Desain Denah Rumah Minimalis 3 Kamar 2 Kamar Mandi ... from deagamdesign.com
Denah Kamar Mandi Kamar mandi ini terlihat simple dan elegan dengan pemilihan material. Memiliki kamar mandi yang cantik dan nyaman tentu menjadi keinginan setiap orang. .denah kamar mandi 2m x 2 m , sebenanrya denah kamar mandi/wc ini dapat digunakan untuk 2. Kamar mandi yang memiliki tata letak yang baik tentunya akan membuat nyaman penggunanya. Saat itu, jessica menyatakan sangat tertekan. Home » gambar kerja/ bestek » denah kamar mandi 1. Denah kamar mandi sangatlah penting untuk diperhatikan di rumah minimalis anda. Tentu nyaman bila ada di rumah anda!

Saat itu, jessica menyatakan sangat tertekan. Mendesain kamar mandi tentu tidak melulu berkutat dengan warna, jenis keramik, penataan dan lainnya.

Denah kamar mandi sangatlah penting untuk diperhatikan di rumah minimalis anda.

Denah Kamar Mandi Menentukan lokasi dari kamar mandi 2. Untuk denah rumah minimalis 3 kamar ini memiliki kamar mandi yang berdekatan dengan ruang tamu, tujuannya untuk mempermudah akses apabila ada tamu yang ingin pergi ke kamar mandi. Mendesain kamar mandi tentu tidak melulu berkutat dengan warna, jenis keramik, penataan dan lainnya. .denah kamar mandi 2m x 2 m , sebenanrya denah kamar mandi/wc ini dapat digunakan untuk 2. Kamar mandi merupakan salah satu tempat untuk pribadi yang mana wajib untuk. Desain kamar mandi juga harus anda perhatikan jika memang ingin membuat rumah anda semakin terkesan minimalis dan modern. Memiliki kamar mandi yang cantik dan nyaman tentu menjadi keinginan setiap orang.

Cewek berjilbab dan jin di kamar mandi!!

Denah Kamar Mandi Pembuatannya membuat denah wc kamar mandi yang benar sesuai etika behavioral. .denah kamar mandi 2m x 2 m , sebenanrya denah kamar mandi/wc ini dapat digunakan untuk 2. Kirimkan ini lewat email blogthis! Banyak hal yang perlu dipertimbangkan selain hanya sekedar desain.

Viral Denah Kamar Mandi Pictures Kamar mandi merupakan salah satu tempat untuk pribadi yang mana wajib untuk. Colmek di kamar mandi sampe basah. Memiliki kamar mandi yang cantik dan nyaman tentu menjadi keinginan setiap orang. Denah kamar mandi ini berukuran 2m x 1.5m, jadi kalian bisa dengan mudah mengubah ukuran gambar diatas dengan ukuran gambar sesuai kebutuhan yang di inginkan. Kamar mandi yang memiliki tata letak yang baik tentunya akan membuat nyaman penggunanya. Cewek berjilbab dan jin di kamar mandi!!

Denah Kamar Mandi Gambar detail denah kamar mandi akan menjadi cukup penting pada gambar konstruksi bangunan gambar detail denah kamar mandi ini bermaksud untuk memberikan pejelasan lebih rinci terhadap. Denah kamar mandi ini berukuran 2m x 1.5m, jadi kalian bisa dengan mudah mengubah ukuran gambar diatas dengan ukuran gambar sesuai kebutuhan yang di inginkan. Pembuatannya membuat denah wc kamar mandi yang benar sesuai etika behavioral. Untuk denah rumah minimalis 3 kamar ini memiliki kamar mandi yang berdekatan dengan ruang tamu, tujuannya untuk mempermudah akses apabila ada tamu yang ingin pergi ke kamar mandi.

Download Denah Kamar Mandi Images Ini adalah desain kamar mandi minimalis kamar mandi adalah bagian terpenting dalam sebuah rumah. Desain rumah minimalis pada gambar mengandalkan 2 ruang tidur utama yang dilengkapi dengan kamar mandi pribadi. Desain kamar mandi juga harus anda perhatikan jika memang ingin membuat rumah anda semakin terkesan minimalis dan modern. Bagaimana sebuah referensi menampilkan ukuran ukuran pasti dari denah kamar mandi. Mendesain kamar mandi tentu tidak melulu berkutat dengan warna, jenis keramik, penataan dan lainnya. Jika pada model desain gambar denah autocad kamar mandi sebelumnya berukuran 2m x 1.5 m.

Kamar mandi minimalis kecil dan sederhana?

Denah Kamar Mandi Kamar mandi merupakan salah satu tempat untuk pribadi yang mana wajib untuk. Ditambah penerapan konsep terbuka yang menggabungkan dapur, ruang makan, dan ruang. Tentu nyaman bila ada di rumah anda! Desain rumah minimalis pada gambar mengandalkan 2 ruang tidur utama yang dilengkapi dengan kamar mandi pribadi.

Top Denah Kamar Mandi Images Ditambah penerapan konsep terbuka yang menggabungkan dapur, ruang makan, dan ruang. Kamar mandi yang memiliki tata letak yang baik tentunya akan membuat nyaman penggunanya. Denah rumah minimalis 3 kamar di atas bisa jadi solusi. Desain rumah minimalis pada gambar mengandalkan 2 ruang tidur utama yang dilengkapi dengan kamar mandi pribadi. Kirimkan ini lewat email blogthis! Ini adalah desain kamar mandi minimalis kamar mandi adalah bagian terpenting dalam sebuah rumah.

Denah Kamar Mandi Cara menggambar detail denah kamar mandi/ wc lengkap dengan fixture yang akan dipasang sesuai dengan arahan atasan atau sesuai gambar skematik yang diberikan perancang. Kirimkan ini lewat email blogthis! Kalau kamar mandi anda yang sekarang belum mampu menghadirkan semangat positif, anda bisa mempertimbangkan untuk merenovasinya dengan denah kamar mandi baru. Denah rumah minimalis 3 kamar di atas bisa jadi solusi.

Get Denah Kamar Mandi Pictures Pembuatannya membuat denah wc kamar mandi yang benar sesuai etika behavioral. Menentukan lokasi dari kamar mandi 2. .denah kamar mandi 2m x 2 m , sebenanrya denah kamar mandi/wc ini dapat digunakan untuk 2. Desain kamar mandi juga harus anda perhatikan jika memang ingin membuat rumah anda semakin terkesan minimalis dan modern. Biasanya cukup sulit untuk menentukan desain kamar mandi yang tepat untuk interior anda. Banyak hal yang perlu dipertimbangkan selain hanya sekedar desain.

Kalau kamar mandi anda yang sekarang belum mampu menghadirkan semangat positif, anda bisa mempertimbangkan untuk merenovasinya dengan denah kamar mandi baru.

Denah Kamar Mandi Kalau kamar mandi anda yang sekarang belum mampu menghadirkan semangat positif, anda bisa mempertimbangkan untuk merenovasinya dengan denah kamar mandi baru. Denah kamar mandi sangatlah penting untuk diperhatikan di rumah minimalis anda. Kamar mandi minimalis kecil dan sederhana? Kamar mandi ini terlihat simple dan elegan dengan pemilihan material.

Download Denah Kamar Mandi Collections Ditambah penerapan konsep terbuka yang menggabungkan dapur, ruang makan, dan ruang. Tentu nyaman bila ada di rumah anda! Pembuatannya membuat denah wc kamar mandi yang benar sesuai etika behavioral. Desain rumah minimalis pada gambar mengandalkan 2 ruang tidur utama yang dilengkapi dengan kamar mandi pribadi. Gambar detail denah kamar mandi akan menjadi cukup penting pada gambar konstruksi bangunan gambar detail denah kamar mandi ini bermaksud untuk memberikan pejelasan lebih rinci terhadap. Ini adalah desain kamar mandi minimalis kamar mandi adalah bagian terpenting dalam sebuah rumah.

Denah Kamar Mandi Untuk denah rumah minimalis 3 kamar ini memiliki kamar mandi yang berdekatan dengan ruang tamu, tujuannya untuk mempermudah akses apabila ada tamu yang ingin pergi ke kamar mandi. Denah kamar mandi sangatlah penting untuk diperhatikan di rumah minimalis anda. Bagaimana sebuah referensi menampilkan ukuran ukuran pasti dari denah kamar mandi. Saat itu, jessica menyatakan sangat tertekan.

View Denah Kamar Mandi Collections Tentu nyaman bila ada di rumah anda! Kamar mandi yang memiliki tata letak yang baik tentunya akan membuat nyaman penggunanya. Kalau kamar mandi anda yang sekarang belum mampu menghadirkan semangat positif, anda bisa mempertimbangkan untuk merenovasinya dengan denah kamar mandi baru. Denah kamar mandi sangatlah penting untuk diperhatikan di rumah minimalis anda. Denah rumah minimalis 3 kamar di atas bisa jadi solusi. Bagaimana sebuah referensi menampilkan ukuran ukuran pasti dari denah kamar mandi.

Kamar mandi minimalis kecil dan sederhana?

Denah Kamar Mandi Kalau kamar mandi anda yang sekarang belum mampu menghadirkan semangat positif, anda bisa mempertimbangkan untuk merenovasinya dengan denah kamar mandi baru. Jika pada model desain gambar denah autocad kamar mandi sebelumnya berukuran 2m x 1.5 m. Dia menyatakan mendapat sel yang paling tidak pantas dan tidak sedikit kecoa. Cewek berjilbab dan jin di kamar mandi!!

Trending Denah Kamar Mandi Pictures Kamar mandi minimalis kecil dan sederhana? Denah kamar mandi ukuran 1.5 x1 5 kreatif. Kamar mandi ini terlihat simple dan elegan dengan pemilihan material. Saat itu, jessica menyatakan sangat tertekan. Desain rumah minimalis pada gambar mengandalkan 2 ruang tidur utama yang dilengkapi dengan kamar mandi pribadi. Pembuatannya membuat denah wc kamar mandi yang benar sesuai etika behavioral.

Denah Kamar Mandi Biasanya cukup sulit untuk menentukan desain kamar mandi yang tepat untuk interior anda. Denah kamar mandi ini berukuran 2m x 1.5m, jadi kalian bisa dengan mudah mengubah ukuran gambar diatas dengan ukuran gambar sesuai kebutuhan yang di inginkan. .denah kamar mandi 2m x 2 m , sebenanrya denah kamar mandi/wc ini dapat digunakan untuk 2. Untuk denah rumah minimalis 3 kamar ini memiliki kamar mandi yang berdekatan dengan ruang tamu, tujuannya untuk mempermudah akses apabila ada tamu yang ingin pergi ke kamar mandi.

Trending Denah Kamar Mandi Pics Denah kamar mandi sangatlah penting untuk diperhatikan di rumah minimalis anda. Saat itu, jessica menyatakan sangat tertekan. Memiliki kamar mandi yang cantik dan nyaman tentu menjadi keinginan setiap orang. Ditambah penerapan konsep terbuka yang menggabungkan dapur, ruang makan, dan ruang. Bagaimana sebuah referensi menampilkan ukuran ukuran pasti dari denah kamar mandi. Kirimkan ini lewat email blogthis!

Dia menyatakan mendapat sel yang paling tidak pantas dan tidak sedikit kecoa.

Denah Kamar Mandi Kirimkan ini lewat email blogthis! Ditambah penerapan konsep terbuka yang menggabungkan dapur, ruang makan, dan ruang. Cara menggambar detail denah kamar mandi/ wc lengkap dengan fixture yang akan dipasang sesuai dengan arahan atasan atau sesuai gambar skematik yang diberikan perancang. Kamar mandi yang memiliki tata letak yang baik tentunya akan membuat nyaman penggunanya.

Download Denah Kamar Mandi Pictures Jika pada model desain gambar denah autocad kamar mandi sebelumnya berukuran 2m x 1.5 m. Kamar mandi yang memiliki tata letak yang baik tentunya akan membuat nyaman penggunanya. Gambar detail denah kamar mandi akan menjadi cukup penting pada gambar konstruksi bangunan gambar detail denah kamar mandi ini bermaksud untuk memberikan pejelasan lebih rinci terhadap. Kamar mandi minimalis kecil dan sederhana? Untuk denah rumah minimalis 3 kamar ini memiliki kamar mandi yang berdekatan dengan ruang tamu, tujuannya untuk mempermudah akses apabila ada tamu yang ingin pergi ke kamar mandi. Pembuatannya membuat denah wc kamar mandi yang benar sesuai etika behavioral.

Denah Kamar Mandi Jika pada model desain gambar denah autocad kamar mandi sebelumnya berukuran 2m x 1.5 m. Kirimkan ini lewat email blogthis! Denah kamar mandi sangatlah penting untuk diperhatikan di rumah minimalis anda. Kalau kamar mandi anda yang sekarang belum mampu menghadirkan semangat positif, anda bisa mempertimbangkan untuk merenovasinya dengan denah kamar mandi baru.

Update Denah Kamar Mandi Collections Kalau kamar mandi anda yang sekarang belum mampu menghadirkan semangat positif, anda bisa mempertimbangkan untuk merenovasinya dengan denah kamar mandi baru. Banyak hal yang perlu dipertimbangkan selain hanya sekedar desain. Kamar mandi minimalis kecil dan sederhana? Cara menggambar detail denah kamar mandi/ wc lengkap dengan fixture yang akan dipasang sesuai dengan arahan atasan atau sesuai gambar skematik yang diberikan perancang. Di tengah kondisi urbanisasi saat ini, sejumlah perumahan didesain minimalis, tak terpungkiri kamar mandinya. Menentukan lokasi dari kamar mandi 2.

Kamar mandi yang memiliki tata letak yang baik tentunya akan membuat nyaman penggunanya.

Denah Kamar Mandi Denah rumah minimalis 3 kamar di atas bisa jadi solusi. Cewek berjilbab dan jin di kamar mandi!! Pembuatannya membuat denah wc kamar mandi yang benar sesuai etika behavioral. Dia menyatakan mendapat sel yang paling tidak pantas dan tidak sedikit kecoa.

Update Denah Kamar Mandi Images Kamar mandi merupakan salah satu tempat untuk pribadi yang mana wajib untuk. Kamar mandi minimalis kecil dan sederhana? Tentu nyaman bila ada di rumah anda! Menentukan lokasi dari kamar mandi 2. Ini adalah desain kamar mandi minimalis kamar mandi adalah bagian terpenting dalam sebuah rumah. Gambar detail denah kamar mandi akan menjadi cukup penting pada gambar konstruksi bangunan gambar detail denah kamar mandi ini bermaksud untuk memberikan pejelasan lebih rinci terhadap.

Denah Kamar Mandi Mendesain kamar mandi tentu tidak melulu berkutat dengan warna, jenis keramik, penataan dan lainnya. Cewek berjilbab dan jin di kamar mandi!! Banyak hal yang perlu dipertimbangkan selain hanya sekedar desain. Untuk denah rumah minimalis 3 kamar ini memiliki kamar mandi yang berdekatan dengan ruang tamu, tujuannya untuk mempermudah akses apabila ada tamu yang ingin pergi ke kamar mandi.

Viral Denah Kamar Mandi Collections Menentukan lokasi dari kamar mandi 2. Biasanya cukup sulit untuk menentukan desain kamar mandi yang tepat untuk interior anda. Saat itu, jessica menyatakan sangat tertekan. Tentu nyaman bila ada di rumah anda! Kamar mandi minimalis kecil dan sederhana? Denah kamar mandi ini berukuran 2m x 1.5m, jadi kalian bisa dengan mudah mengubah ukuran gambar diatas dengan ukuran gambar sesuai kebutuhan yang di inginkan.

Kamar mandi merupakan salah satu tempat untuk pribadi yang mana wajib untuk.

Denah Kamar Mandi Kamar mandi merupakan salah satu tempat untuk pribadi yang mana wajib untuk. Ditambah penerapan konsep terbuka yang menggabungkan dapur, ruang makan, dan ruang. Ini adalah desain kamar mandi minimalis kamar mandi adalah bagian terpenting dalam sebuah rumah. Menentukan lokasi dari kamar mandi 2. Mendesain kamar mandi tentu tidak melulu berkutat dengan warna, jenis keramik, penataan dan lainnya. Biasanya cukup sulit untuk menentukan desain kamar mandi yang tepat untuk interior anda.